Description
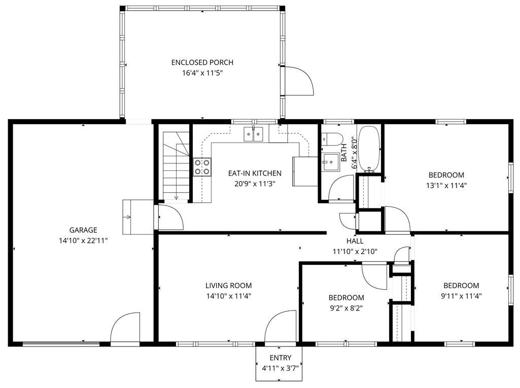
One level living at its finest in desirable East Greenwich! Welcome to 65 Pequot Trail and welcome to updated, care-free living. Featuring a new roof, new central air, garage, fenced yard, low maintenance vinyl exterior, replaced windows & more! Step inside your sun-filled living room with hardwood floors & picture window, leading to a spacious eat-in kitchen which is complimented by black stainless appliances and a sky light that provides ample natural light. Your recently renovated bathroom is all new with modern fixtures and another sky light providing excellent light. All 3 bedrooms are on the main level and offer hardwood floors throughout. The newly finished lower level offers perfect extra living space for lounging, home office, fitness, playroom, flex, etc. Your lower level is complimented by a laundry room, ample storage and access to your fenced yard. The oversized garage is great for any vehicle with additional space for other items. The manicured backyard offers a cozy screened patio perfect for those summer nights, an outdoor patio for grilling and firepit for smores! All set in a very convenient East Greenwich location just moments to Route 4 & 2, EG Schools, shopping and the gateway to South County/Wickford/Newport/Beaches. Ideal for all - first time buyers, downsizers & condo alternative. Mint. Call today.
-
3BEDS
-
0.19ACRES
-
1BATHS
-
01/2 BATHS
-
1,288SQFT
-
$408$/SQFT
School Ratings & Info
Description
One level living at its finest in desirable East Greenwich! Welcome to 65 Pequot Trail and welcome to updated, care-free living. Featuring a new roof, new central air, garage, fenced yard, low maintenance vinyl exterior, replaced windows & more! Step inside your sun-filled living room with hardwood floors & picture window, leading to a spacious eat-in kitchen which is complimented by black stainless appliances and a sky light that provides ample natural light. Your recently renovated bathroom is all new with modern fixtures and another sky light providing excellent light. All 3 bedrooms are on the main level and offer hardwood floors throughout. The newly finished lower level offers perfect extra living space for lounging, home office, fitness, playroom, flex, etc. Your lower level is complimented by a laundry room, ample storage and access to your fenced yard. The oversized garage is great for any vehicle with additional space for other items. The manicured backyard offers a cozy screened patio perfect for those summer nights, an outdoor patio for grilling and firepit for smores! All set in a very convenient East Greenwich location just moments to Route 4 & 2, EG Schools, shopping and the gateway to South County/Wickford/Newport/Beaches. Ideal for all - first time buyers, downsizers & condo alternative. Mint. Call today.
Related Properties
© 2026 State-Wide Multiple Listing Service. All rights reserved. The data relating to real estate for sale or lease on this web site comes in part from the Internet Data Exchange (IDX) program of the State-Wide MLS. Real estate listings held by brokerage firms other than The Martone Group | RE/MAX Properties are marked with the MLS logo or an abbreviated logo and detailed information about them includes the name of the listing broker. Information is deemed reliable but is not guaranteed accurate by the MLS or The Martone Group | RE/MAX Properties. IDX information is provided exclusively for consumers' personal, non-commercial use and may not be used for any purpose other than to identify prospective properties consumers may be interested in purchasing. Data last updated: 2026-03-05T23:37:38.54.
